русс | укр

Языки программирования

ПаскальСиАссемблерJavaMatlabPhpHtmlJavaScriptCSSC#DelphiТурбо Пролог

Компьютерные сетиСистемное программное обеспечениеИнформационные технологииПрограммирование

Все о программировании


Linux Unix Алгоритмические языки Аналоговые и гибридные вычислительные устройства Архитектура микроконтроллеров Введение в разработку распределенных информационных систем Введение в численные методы Дискретная математика Информационное обслуживание пользователей Информация и моделирование в управлении производством Компьютерная графика Математическое и компьютерное моделирование Моделирование Нейрокомпьютеры Проектирование программ диагностики компьютерных систем и сетей Проектирование системных программ Системы счисления Теория статистики Теория оптимизации Уроки AutoCAD 3D Уроки базы данных Access Уроки Orcad Цифровые автоматы Шпаргалки по компьютеру Шпаргалки по программированию Экспертные системы Элементы теории информации

Специализация объекта. Указываются особенности производственной деятельности (работа на сырье, полуфабрикатах, полуфабрикатах высокой степени готовности).


Дата добавления: 2015-08-06; просмотров: 1862; Нарушение авторских прав


Общее организационно-технологическое решение включает в себя детальное описание состава помещений (складских, производственных, торговых, служебно-бытовых), последовательности технологического процесса, особенностей планировочных решений отдельных помещений или групп с обозначением отдельных участков, технологических режимов работы, их оснащенность.

 

Данный раздел должен обязательно сопровождаться графическим материалом, выполняемым в процессе лабораторных работ и включающим в себя:

1 принципиальную схему взаимосвязи групп помещений магазина-кулинарии;

2 планировочное решение складской группы помещений с расстановкой оборудования;

3 планировочное решение горячего (кулинарного) цеха с расстановкой оборудования;

4 планировочное решение цеха мучных изделий с расстановкой оборудования;

5 планировочное решение торгового зала с расстановкой оборудования;

6 общее планировочное решение магазина-кулинарии на 3 рабочих места, имеющего собственное производство (в т.ч. цех мучных изделий) и торговый зал (кафетерий на 16 мест).

Графический материал оформляется на листах формата А4 или А3 в масштабе. Основная надпись оформляется в общеустановленном порядке. Нумерация отдельных листов графического материала сквозная.

Пояснительная записка оформляется в соответствии с СТП СМК 4.2.3-01-2011, содержит титульный лист, содержание, текст записки, графический материал.

Полностью и правильно оформленная пояснительная записка подписывается студентом и преподавателем, и является основанием для допуска к зачету.

Приложение А

(справочное)

Таблица А.1 - Площади помещений магазинов кулинарии

Помещения Площадь помещений магазина кулинарии самообслуживания на 10 м2 торговой площади зала, м2
до 40 м2 торговой площади зала увеличение на каждые 10 м2 торговой площади зала, св. 40 м2
Подсобные помещения 0,8
Для приема и хранения продуктов 1,5 1,45
Зона выдачи обедов на дом 1,2 0,8
Служебные и бытовые помещения (при работе на полуфабрикатах) 1,4 0,8

Примечание:



1 Для определения площадей групп помещений объектов питания меньше указанной вместимости применяется один и тот же нормативный показатель, но по принципу вычитания.

2 При изготовлении мучных изделий на объектах питания площади производственных помещений следует увеличивать на 15%.

Таблица А.2 - Минимальные удельные показатели расчетной и общей площади (рекомендуемые) объектов питания (на одно место в зале)

Тип объекта питания Вместимость залов, мест Площадь, м2:
расчетная общая  
Магазины кулинарии (при работе на полуфабрикатах высокой степени готовности) на одно рабочее место 26,8   32,1    

 

Таблица А.3 - Площади помещений кафетериев (рекомендуемые)

Помещения Площадь, м2
Зал кафетерия с раздаточной на, мест:  
Подсобные помещения и моечная

 

Таблица А.4 - Площади помещений цехов мучных изделий (рекомендуемые)

Помещения Площади помещений цеха мучных изделий, м2
на 1000 изделий увеличение или уменьшение на 1000 изделий
Помещение для выпечки изделий
Кладовая и моечная тары 6 (до 3000 изделий)

Продолжение приложения А

 

Таблица А.5 - Состав помещений цехов кондитерских и мучных изделий (обязательный)

Наименование помещений Мощность, тыс. изделий в смену
св. 10 от 5 до 10 менее 5
Кладовая суточного запаса сырья с холодильным оборудованием и отделением подготовки продуктов (к; м)* + + +
Помещение для зачистки масла (к) + + участок
Помещение для обработки яиц с отделением для приготовления яичной массы (к; м) + + +
Помещение для приготовления теста с отделением для просеивания муки (к; м) + + + или участок
Отделение разделки теста и выпечки (к; м) + + +
Отделение выстойки и резки бисквита (к) + - -
Отделение приготовления отделочных полуфабрикатов: сиропов, помады, желе (к) + + +
Отделение отделки кондитерских изделий с холодильной камерой (к) + + +
Помещение для хранения упаковки (к) + + + или участок
Моечная внутрицеховой тары и крупного инвентаря (к; м) + + +
Моечная и стерилизация мелкого инвентаря (к) + + + или участок
Помещение для мытья и сушки оборотной тары (к) + + +
Экспедиция кондитерских изделий с холодильной камерой для кремовых изделий (к) + + -
Кладовая готовой продукции (к; м) - - +
Отделение приготовления крема с холодильным оборудованием (к) + + или участок + или участок
* Обозначение в скобках: (к) - для кондитерского цеха; (м) - для цеха мучных изделий.
Примечания 1 При выработке мучных и булочных изделий без крема могут быть исключены: помещение (участок) для приготовления крема, кладовая готовых кремовых изделий, моечная и стерилизационная мелкого инвентаря, холодильная камера для кремовых изделий в экспедиции. 2 Для цеха мучных изделий мощностью свыше 10 тыс. изд. в смену в помещении для обработки яиц следует предусматривать холодильное оборудование в отделении для приготовления яичной массы.

 


Приложение Б

(справочное)

 

 

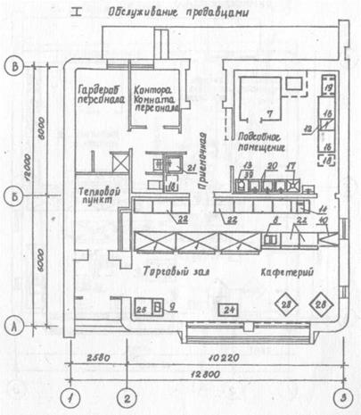
Рисунок Б.1 - Планировочное решение магазина-кулинарии на три рабочих места с обслуживанием продавцами (типовой проект 77-10)   Рисунок Б.2 - Планировочное решение магазина-кулинарии на три рабочих места с самообслуживанием (типовой проект 77-10)  

Продолжение приложения Б

 

 

 

Рисунок Б.3 - Планировочное решение магазина-кулинарии при столовой на 75 мест (типовой проект 271-20-25-122)   Рисунок Б.4 - Планировочное решение магазина-кулинарии при ресторане на 100 мест (типовой проект 77-5)  

 

 

Продолжение приложения Б

 

 

 

Рисунок Б.5 - Планировочное решение отдела-кулинарии при продовольственном магазине торговой площадью 150 м2 (типовой проект 84-4)   Рисунок Б.6 - Планировочное решение магазина-кулинарии при торговом центре для обслуживания 3-4 тыс. жителей (типовой проект 76-1)  

 

 

Продолжение приложения Б

 

 

 

Рисунок Б.7 - Планировочное решение отдела-кулинарии при продовольственном магазине (универсаме) торговой площадью 650 м2 (типовой проект 75-34/79)   Рисунок Б.8 - Планировочное решение отдела-кулинарии при продовольственном магазине (универсаме) торговой площадью 250 м2 (типовой проект 78-4)  

 

 

Продолжение приложения Б

 

Рисунок Б.9 – Спецификация оборудования магазинов (отделов) кулинарии


Приложение В

(справочное)



<== предыдущая лекция | следующая лекция ==>
Задание 2. Определить состав складских помещений | ПРИНЦИПЫ РАЗМЕЩЕНИЯ ОБОРУДОВАНИЯ


Карта сайта Карта сайта укр


Уроки php mysql Программирование

Онлайн система счисления Калькулятор онлайн обычный Инженерный калькулятор онлайн Замена русских букв на английские для вебмастеров Замена русских букв на английские

Аппаратное и программное обеспечение Графика и компьютерная сфера Интегрированная геоинформационная система Интернет Компьютер Комплектующие компьютера Лекции Методы и средства измерений неэлектрических величин Обслуживание компьютерных и периферийных устройств Операционные системы Параллельное программирование Проектирование электронных средств Периферийные устройства Полезные ресурсы для программистов Программы для программистов Статьи для программистов Cтруктура и организация данных


 


Не нашли то, что искали? Google вам в помощь!

 
 

© life-prog.ru При использовании материалов прямая ссылка на сайт обязательна.

Генерация страницы за: 0.216 сек.