русс | укр

Языки программирования

ПаскальСиАссемблерJavaMatlabPhpHtmlJavaScriptCSSC#DelphiТурбо Пролог

Компьютерные сетиСистемное программное обеспечениеИнформационные технологииПрограммирование

Все о программировании


Linux Unix Алгоритмические языки Аналоговые и гибридные вычислительные устройства Архитектура микроконтроллеров Введение в разработку распределенных информационных систем Введение в численные методы Дискретная математика Информационное обслуживание пользователей Информация и моделирование в управлении производством Компьютерная графика Математическое и компьютерное моделирование Моделирование Нейрокомпьютеры Проектирование программ диагностики компьютерных систем и сетей Проектирование системных программ Системы счисления Теория статистики Теория оптимизации Уроки AutoCAD 3D Уроки базы данных Access Уроки Orcad Цифровые автоматы Шпаргалки по компьютеру Шпаргалки по программированию Экспертные системы Элементы теории информации

Задание 1. Изучить особенности расположения функциональные зон в ООП и особенности распределения основных технологических потоков


Дата добавления: 2015-08-06; просмотров: 1552; Нарушение авторских прав


Особое значение приобретает требование о расположении функциональных зон на одном уровне. Поскольку этот основной принцип осуществить полностью удается не всегда, расположение отдельных зон на разных отметках следует устанавливать с учетом значимости каждой из зон. Первостепенное значение имеет расположение на одном уровне зоны для посетителей и производственной зоны. Особенно важным является непосредственное удобное сообщение между участками приготовления пищи и мойки посуды, с одной стороны, и зоной для посетителей — с другой. Зона для посетителей и производственная зона могут по-разному располагаться одна относительно другой. К числу типичных форм взаиморасположения этих зон относятся продольная и широтная схемы. По широтной схеме вытянутая в плане производственная зона размещается параллельно зоне для посетителей.

При этом хорошо обозреваемый фронт раздачи и прямая взаимосвязь с моечной обеспечивают удобство передачи блюд и посуды, а также удобство передвижения посетителей. При такой компоновке, как правило, лишь небольшое число помещений для посетителей может примыкать к производственной зоне.

Взаимосвязь производственной зоны для посетителей, решенная по продольной схеме, характеризуется примыканием с узкой стороны. При этом места раздачи готовых блюд и напитков часто располагаются не в одну линию. Не всегда возможна и непосредственная взаимосвязь моечной для посуды с зоной для посетителей.

Различные варианты расположения обеих зон в здании схематически показаны на рисунке 2, из которого видно, что в зданиях с прямоугольной формой плана наиболее благоприятные условия для объектов общественного питания создаются при Г- и П-образном расположении зон для посетителей. Для вытянутых в плане зданий с ограниченной глубиной следует применять только продольную схему (схемы Б, В и Ж). Недостаток схемы состоит в том, что два помещения зоны для посетителей непосредственно не связаны между собой.



 

А, Б, В — одностороннее расположение зоны для посетителей;

Г, Дотделенное расположение зоны для посетителей;

Е — Г-образное расположение зоны для посетителей;

Ждвустороннее расположение зоны для посетителей

З — П-образное расположение зоны для посетителей;

И— опоясывающее расположение зоны для посетителей;

1 — производственная зона; 2 — зона посетителей; 3 — моеч­ные для посуды;

4 — раздача, отбор блюд при самообслуживании

Рисунок 2 - Варианты взаиморасположения зоны для посетителей и

производственной зоны

 

Прямолинейность путей транспортировки товаров при Г-образном охвате производственной зоны помещениями для посетителей достигается при приближении формы плана к квадратной. Основным преимуществом такого охвата является центральное расположение моечной для посуды, что обеспечивает рациональность пути циркуляции посуды.

Ограниченное взаимное примы­кание обеих зон, показанное на схе­мах Г и Д, часто встречается на объектах общественного пита­ния. Вытянутая в длину линия раз­дачи не связана непосредственно с производственно-хозяйственной зоной, что отрицательно влияет на товарный поток.

Г-образное расположение складов товаров и продуктов вокруг кухонных поме­щений является наиболее рациональным (рисунок 3). Частота производственных взаимо­связей определяет взаимное расположение функциональных площадей.

Путь обратной транспортировки использованной посуды из торгового зала, который по возможности не должен пересекаться с путями движения посетителей, следует про­ектировать с учетом схемы входа и выхода потока посетителей. Пути транспортировки продуктов зависят от их ассортимента и степени обра­ботки. Если продукты с низкой сте­пенью обработки (овощи, свежее мясо) на пути от места приема до места раздачи должны еще быть подвергнуты всем частным техно­логическим процессам, продукты с высокой степенью обработки (кон­дитерские изделия, напитки) могут перемещаться, минуя один или да­же несколько частных технологиче­ских процессов.

А б

а — одностороннее расположение кладовых продуктов и това­ров;

б — Г-образное расположение кладовых продуктов и то­варов;

1 - сквозной товарный поток; 2 - обратный товарный поток;

3 - доставка продуктов и товаров, вывоз тары, контей­неров, отходов и мусора;

4 - кладовые товаров, продуктов и хозяйственного инвентаря; 5 – кухня.

Рисунок 3 - Расположение складов продуктов и товаров относительно кухни

В целях улучшения организации производства сырье или полуфабри­каты по возможности следует пред­варительно обрабатывать или заго­тавливать с запасом, с тем, чтобы полностью удовлетворять колеблю­щийся спрос (выпуск резервной продукции, объем которой устанавливается на основе опытных данных).

 

Задание 2. Изучить типовые планировочные решения магазинов-кулинарии

В Приложении Б приведены варианты технологических планировок магазинов (отделов) кулинарии, кафетериев, организованных на базе действующих объектов общественного питании и розничной торговли.

Предлагаемые варианты предусматривают как традиционную форму торговли (через прилавок), так и самообслуживание.

 

Задание 3. Изучить требования к объемно-планировочным решениям объектов питания (магазинам кулинарии)

Состав помещений объектов питания следует принимать в зависимости от типа объекта питания, форм и методов обслуживания потребителей, его наценочной категории, а также с учетом основных требований к архитектурно-планировочным решениям.

Объемно-планировочные решения помещений объектов питания должны предусматривать поточность технологического процесса, исключать встречные потоки сырья, полуфабрикатов и готовой продукции, использованной и чистой посуды, а также исключать пересечение путей движения покупателей (потребителей) и персонала.

В здании объекта питания следует предусматривать раздельные входы и лестницы для покупателей (потребителей) и персонала.

Ширину коридоров в группе производственных помещений, помещений приема и хранения продуктов, служебных и бытовых помещений следует принимать по таблице 4.1.

Ширина дверей в производственных помещениях, в помещениях приема и хранения продуктов, в зависимости от их площади, должна быть, м, не менее:

- до 10 м2 – 0,9;

- более 10 м2 – 1,2.

Высота дверей в этих помещениях – не менее 2,0 м.

Двери для проезда тележек с поддонами следует принимать шириной не менее 1,5 м, и высотой не менее 2,0 м, не нарушая требований СНБ 2.02.02.

 

Таблица 4.1 – Рекомендуемая ширина коридоров

Группа помещений Ширина коридора, м (не менее), при количестве блюд в сутки*
до 3000 от 3001 до 6000 более 6000
Производственных 1,3 1,5 1,8
Помещений приема и хранения продуктов 1,3 1,5 1,8 (2,7)**
Служебных и бытовых 1,3 1,3 1,3
* Или мест в зале соответственно: до 100; от 101 до 200; более 200. ** В скобках – при применении тележек с поддонами.

 

Помещения залов, производственные и служебные помещения с постоянным пребыванием людей, как правило, должны иметь естественное освещение (боковое, верхнее). Эти помещения рекомендуется защищать планировочными и конструктивными мерами от прямых солнечных лучей.

Размещение производственных помещений в структуре здания должно обеспечивать последовательность технологических процессов обработки продуктов и изготовления изделий при минимальной протяженности функциональных связей и отсутствии пересечения технологических и транспортных потоков. Производственные помещения не должны быть проходными, исключение могут составлять отдельные помещения, связанные последовательными технологическими процессами Производственные помещения для объектов питания производительностью 1500 и более блюд в сутки (или 50 и более мест) рекомендуется предусматривать обособленно. В объектах питания меньшей производительности, работающих на сырье и/или полуфабрикатах, допускается объединять в одном помещении:

- горячий, холодный или горячий, холодный и доготовочный цеха;

- моечные столовой и кухонной посуды.

При соответствующем обосновании допускается применять бесцеховую структуру производства – объединение в одном помещении цехов (участков) различного назначения при обеспечении последовательности технологических процессов обработки продуктов и изготовления изделий.

При объединении в одном помещении цехов (участков) с различными температурно-влажностными режимами, а также моечных различного назначения следует применять технологическое оборудование (с местными отсосами, охлаждаемыми поверхностями и др.), обеспечивающее в местах обработки и приготовления пищевых продуктов заданные параметры внутренней среды. В таком помещении цеха (участки) следует разделять барьерами высотой до 1,6 м или оборудованием.

Служебные и бытовые помещения объектов питания рекомендуется проектировать в единой зоне (блоке), функционально связывая ее с другими помещениями коридорами. Гардеробные объектов питания следует проектировать общими для хранения всех видов одежды – уличной (верхней), домашней, специальной, санитарной и форменной.

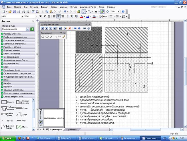
Задание 4. Разработать принципиальную схему взаимосвязи основных функциональных зон проектируемого магазина-кулинарии с обозначением путей движения основных технологических потоков.

Схему рекомендуется разрабатывать с помощью векторной графики Visio или Auto Cad (рисунок 4). Оформить в виде рисунка в тексте пояснительной записки.

Общее решение плана должно обеспечивать короткие пути сообщения между функциональными зонами.

 

Рисунок 4 – Пример оформления схемы взаимосвязи основных функциональных зон


Практическая работа 3

Расчет площадей складских помещений

 

Цель: рассчитать площади складских помещений, определить их состав.

 



<== предыдущая лекция | следующая лекция ==>
Задание 2. Составить ассортимент продукции кафетерия | Общие сведения


Карта сайта Карта сайта укр


Уроки php mysql Программирование

Онлайн система счисления Калькулятор онлайн обычный Инженерный калькулятор онлайн Замена русских букв на английские для вебмастеров Замена русских букв на английские

Аппаратное и программное обеспечение Графика и компьютерная сфера Интегрированная геоинформационная система Интернет Компьютер Комплектующие компьютера Лекции Методы и средства измерений неэлектрических величин Обслуживание компьютерных и периферийных устройств Операционные системы Параллельное программирование Проектирование электронных средств Периферийные устройства Полезные ресурсы для программистов Программы для программистов Статьи для программистов Cтруктура и организация данных


 


Не нашли то, что искали? Google вам в помощь!

 
 

© life-prog.ru При использовании материалов прямая ссылка на сайт обязательна.

Генерация страницы за: 0.021 сек.