русс | укр

Языки программирования

ПаскальСиАссемблерJavaMatlabPhpHtmlJavaScriptCSSC#DelphiТурбо Пролог

Компьютерные сетиСистемное программное обеспечениеИнформационные технологииПрограммирование

Все о программировании


Linux Unix Алгоритмические языки Аналоговые и гибридные вычислительные устройства Архитектура микроконтроллеров Введение в разработку распределенных информационных систем Введение в численные методы Дискретная математика Информационное обслуживание пользователей Информация и моделирование в управлении производством Компьютерная графика Математическое и компьютерное моделирование Моделирование Нейрокомпьютеры Проектирование программ диагностики компьютерных систем и сетей Проектирование системных программ Системы счисления Теория статистики Теория оптимизации Уроки AutoCAD 3D Уроки базы данных Access Уроки Orcad Цифровые автоматы Шпаргалки по компьютеру Шпаргалки по программированию Экспертные системы Элементы теории информации

Задача 1


Дата добавления: 2015-07-09; просмотров: 450; Нарушение авторских прав


Визначити орієнтовну кількість заземлювачів.

Струм короткого замикання визначається

3.2.

де Rпров — опір проводів (Ом);

Rзаз — опір заземлень пристрою і трансформатора (Ом):

Rтр — опір трансформатора (Ом).

Напруга на корпус приладу відносно землі Uдот складає

3.3

де, — опір заземлення пристрою (Ом),

а струм, який проходить через людину у випадку її дотику до корпусу, становить:

А 3.4

де Rконт — опір контакту "людина - пристрій" та "людина - заземлювач" (Ом).

 

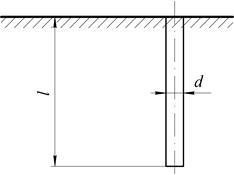
№ вар.   Грунт   Діаметр труби, d, мм   Довжина труби, l, м 1. За індивідуальним завданням розрахувати початковий опір трубчастого заземлювача за формулою , де – розрахунковий опір грунта (для торфу – 20 Ом∙м; чорнозему – 30 Ом∙м; садової землі – 50 Ом∙м; глини – 60 Ом∙м; суглинку – 100 Ом∙м; супіску – 300 Ом∙м; піску – 500 Ом∙м). 2. Визначити необхідну кількість заземлювачів , де Ом – допустимий опір заземлення; – коефіцієнт використання вертикальних заземлювачів: d,мм , Ом ≤ 40 0,69 0,45 0,9 >40 0,62 0,4 0,6 3.Визначити повний опір заземлення за формулою і порівняти його з допустимим опором = 4 Ом, де коефіцієнт використання горизонтальних з’єднувальних стрічок; – опір одиниці заземлювача в Ом.   Наприклад, для ґрунту – пісок, = 32 мм, = 4 м: Ом; ; попередньо приймаємо , тоді Ом< 4 Ом. Оскільки умова захисту від ураження електричним струмом виконується, остаточно приймаємо заземлення із 45 труб діаметром 32 мм і довжиною 4 м.
торф 2,5


<== предыдущая лекция | следующая лекция ==>
Захисне заземлення | Задача 3


Карта сайта Карта сайта укр


Уроки php mysql Программирование

Онлайн система счисления Калькулятор онлайн обычный Инженерный калькулятор онлайн Замена русских букв на английские для вебмастеров Замена русских букв на английские

Аппаратное и программное обеспечение Графика и компьютерная сфера Интегрированная геоинформационная система Интернет Компьютер Комплектующие компьютера Лекции Методы и средства измерений неэлектрических величин Обслуживание компьютерных и периферийных устройств Операционные системы Параллельное программирование Проектирование электронных средств Периферийные устройства Полезные ресурсы для программистов Программы для программистов Статьи для программистов Cтруктура и организация данных


 


Не нашли то, что искали? Google вам в помощь!

 
 

© life-prog.ru При использовании материалов прямая ссылка на сайт обязательна.

Генерация страницы за: 0.922 сек.